Fjölbýlishús - 201 Kópavogur




SMELLTU HÉR TIL AÐ SKRÁ ÞIG Í OPIÐ HÚS OG FÁ UPPLÝSINGABÆKLING SENDAN
Opið hús verður haldið fimmtudaginn 20. nóv 2025 kl 17:00 - 17:30
Böðvar Reynisson löggiltur fasteignasali gefur upplýsingar og sýnir eignina s. 766-8484 eða bodvar@husaskjol.is
Falleg, björt og vel skipulögð 5 herbergja útsýnisíbúð á eftirsóttum stað í Smárahverfinu. Stutt er í alla helstu þjónustu s.s. Smáralind, Smáratorg, skóla, leikskóla, íþróttasvæði Breiðablik/Fífan, líkamsrækt o.m.fl. Einstaklega fallegt útsýni er úr öllum helstu rýmum íbúðarinnar og af svölum. Húsinu er vel viðhaldið og var steypuviðgert og málað sl. sumar.
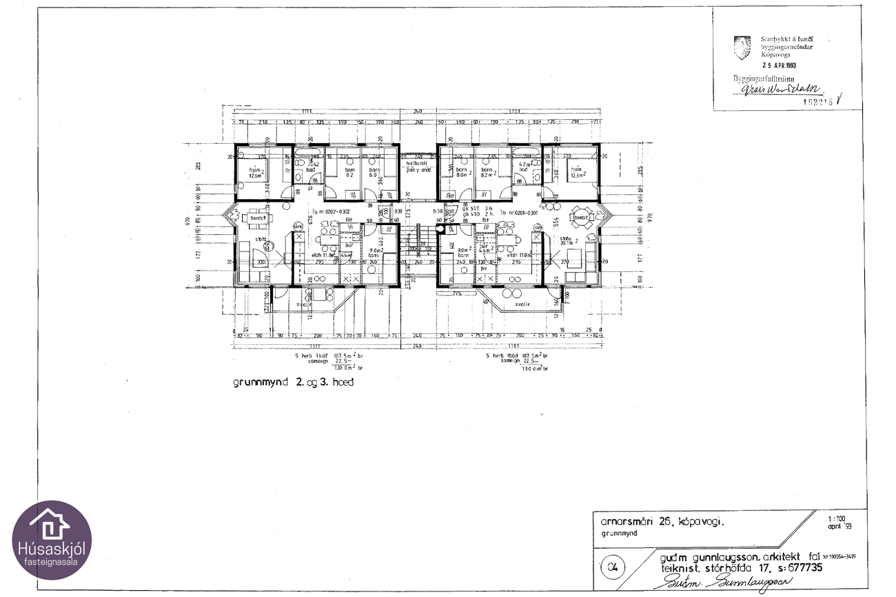
Eignin skiptist í forstofu, eldhús, stofu, 4x svefnherbergi, baðherbergi, þvottahús innan íbúðar og geymsluloft yfir íbúð. Sérgeymsla í kjallara. Hjólageymsla í sameign.
Forstofa með flísum á gólfi og rúmgóðum fataskáp.
Eldhús er rúmgott með flísum á gólfi og hvítri L innréttingu með, innfelldum ofni, helluborði og gufugleypi í efri skápum yfir helluborði. Tengi er fyrir uppþvottavél. Nægt rými fyrir borð og stóla. Útsýni í vestur.
Þvottahús/búr/ræstirými er inn af eldhúsi og þar er gengt upp á geymsluloft með niðurfellanlegum stiga. Tengi er fyrir þvottavél og þurrkara. Vinnuborð er yfir vélum, hillur á veggjum og lagnir fyrir vaski.
Stofan er rúmgóð og björt og nýtist vel sem borðstofa og stofa. Parket er á gólfi, gólfsíður gluggi í suður og góðir gluggar í vestur þar sem gengt út á vestur svalir með fallegu útsýni.
Svefnherbergi I er á hægri hönd frá forstofu þegar gengið er inn í íbúðina, parket á gólfi, fataskápur og útsýni í vestur.
Svefnherbergi II er á vinstri hönd frá forstofu þegar gengið er inn í íbúðina, parket á gólfi, fataskápur og útsýni í austur.
Svefnherbergi III er á vinstri hönd þegar komið er inn í alrými íbúðar frá forstofu, parket á gólfi, rúmgóður fataskápur og útsýni í austur.
Baðherbergið er á á vinstri hönd frá alrými, innrétting með handlaug, speglaskápur yfir handlaug, skápur er einnig á vegg yfir ofni, opnanlegur gluggi, salerni og baðkar með sturtu. Flísar á gólfi, baðhlið og langt upp með veggjum.
Svefnherbergi IV / Hjónaherbergið er rúmgott, parket á gólfi og gott skápapláss. Útsýni í austur.
Upplýsingar um viðhald skv. seljanda:
Húsaskjól fasteignasala - af því að þín fasteign skiptir máli
Ertu í söluhugleiðingum? Smelltu hér til að fá frítt verðmat
Ertu að leita að sambærilegri íbúð? Smelltu hér til að skrá þig á kaupóskalistann okkar
Fylgdu okkur á Instagram
Skoðaðu hvað okkar viðskiptavinir hafa um Skoðaðu hvað okkar viðskiptavinir hafa um okkur að segja
Hvað er í gangi á fasteignamarkaðnum? Skráðu þig á Fréttaskot Húsaskjóls
Húsaskjól advices potential buyers who do not speak or read icelandic to have a translator present when they view and sign an offer, sales agreement and other documents relating to the purchase of the property.
Um skoðunar- og aðgæsluskyldu:
Í lögum um fasteignakaup nr. 40/2002 er kveðið á um ríka skoðunarskyldu kaupenda á fasteignum. Vill Húsaskjól fasteignasala því skora á væntanlega kaupendur að kynna sér vel ástand fasteigna fyrir kauptilboðsgerð og leita til þar til bærra sérfræðinga um nánari skoðun.
Forsendur söluyfirlits:
Söluyfirlit er samið af fasteignasala í samræmi við ákvæði laga nr. 70/2015. Þær upplýsingar sem fram koma í söluyfirliti þessu eru sóttar í opinberar skrár, til seljanda sjálfs og eftir atvikum til húsfélags. Seljandi veitir upplýsingar um eign í samræmi við upplýsingaskyldu laga um fasteignakaup nr. 40/2002. Fasteignasali sannreynir að þær upplýsingar séu réttar með sjónskoðun á eigninni.
Fasteignasali getur ekki fullyrt um ástand og eiginleika þeirra hluta fasteigna sem ekki eru aðgengilegir og sjást ekki berum augum, t.d. lagnir, dren, skólp og þak.
Gjöld sem kaupandi þarf að standa straum af vegna kaupanna:
1. Stimpilgjald af kaupsamningi, fyrstu kaup (0,4%), almenn kaup (0,8%), lögaðilar (1,6%) af heildarfasteignamati.
2. Þinglýsingargjald af kaupsamningi, veðskuldabréfi, mögulegu veðleyfi o.fl. - kr. 2.700 af hverju skjali.
3. Lántökugjald lánastofnunar - fast gjald. Sjá vefsíðu viðkomandi lánastofnanna
4. Umsýslugjald til fasteignasölu skv. kauptilboði
| Tegund | Fjölbýlishús |
| Verð | 86.700.000 kr |
| Fasteignamat | 73.500.000 kr |
| Brunabótamat | 56.800.000 kr |
| Stærð | 106,5 fermetrar |
| Herbergi | 5 |
| Svefnherbergi | 4 |
| Baðherbergi | 1 |
| Byggingarár | 1994 |
| Lyfta | nei |
| Bílskúr | nei |
| Bílskýli | nei |
| Garður | já |
| Skráð | 14.11.2025 |