Fjölbýlishús - 220 Hafnarfjörður


Język polski poniżej/English below
SKRÁÐU ÞIG Í OPIÐ HÚS – HÉR og fáðu sendan UPPLÝSINGABÆKLING
Opið hús verður haldið þriðjudaginn 10. mars 2026 kl. 17:00–17:30.
Böðvar Reynisson, löggiltur fasteignasali, sýnir eignina – s. 766-8484 eða bodvar@husaskjol.is
Góð 3ja herbergja útsýnisíbúð með 30,9m² bílskúr á þessum vinsæla stað í Hafnarfirði. Stutt er í alla helstu þjónustu s.s. leikskóla, skóla, sundlaug, verslanir o.fl.
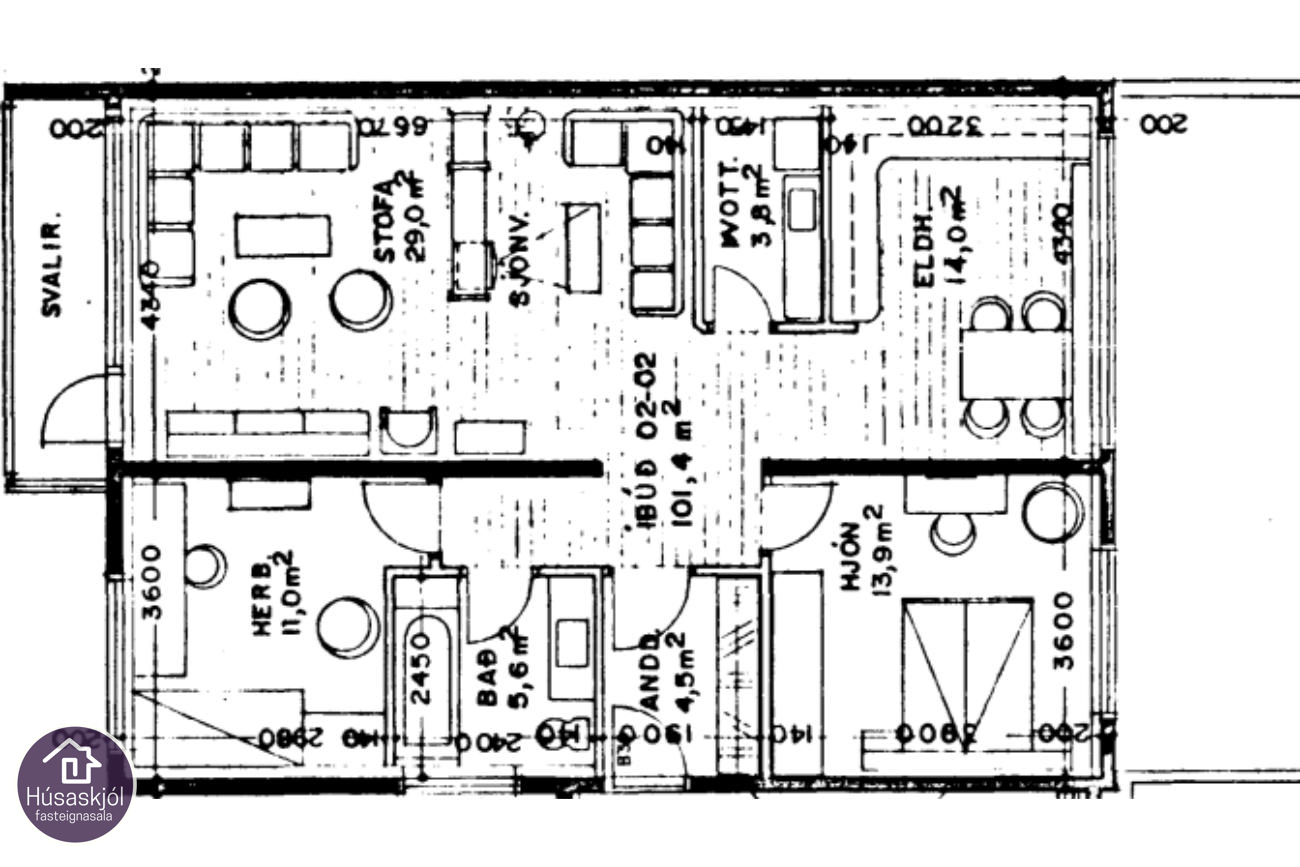
Íbúð: 101,4 m²
Geymsla: 6,0 m²
Bílskúr: 30,9 m²
Samtals: 138,3 m²
Eignin skiptist í: Stofu/borðstofu, eldhús, baðherbergi, 2 svefnherbergi, forstofu, þvottahús, bílskúr og geymslu.
Forstofa: Flísar á gólfi, gott fatahengi og rúmgóðir skápar.
Svefnherbergi I: Rúmgott með parketi á gólfi og stórum, góðum fataskáp.
Svefnherbergi II: Rúmgott með parketi á gólfi og góðum fataskáp.
Stofa/Borðstofa: Rúmgóð og björt með parketi á gólfi, stórum og góðum gluggum og útgengi á svalir.
Eldhús: Rúmgott og bjart með borðkrók og stórum gluggum. Flísar á gólfi og góð innrétting með miklu skápaplássi. Innfelldur ofn með helluborði, gufugleypir og tengi fyrir uppþvottavél.
Baðherbergi: Rúmgott með opnanlegum glugga. Flísalagt í hólf og gólf. Innrétting með efri og neðri skápum, handlaug og spegli. Baðkar með sturtu og handklæðaofn.
Þvottahús: Innan íbúðar, flísar á gólfi, tengi fyrir þvottavél og þurrkara og rúmgóð innrétting.
2025: Settar upp hleðslustöðvar, á sameignarstæði, fyrir rafbíla
2023: Húsið múrviðgert og málað að utan
2023: Stigahús málað að innan og skipt um útidyrahurð
2022: Skipt um svalahurðir og brunavarnarhurðir úr íbúðum í stigahús
2022: Sett upp nýtt mynddyrasímakerfi
Eignarhluti 0202 – Fasteignanúmer F2079893.
Birt stærð séreignar er 107,4 m² auk bílskúrs 30,9 m², samtals 138,3 m².
Eignin er íbúð á 2. hæð hússins, 101,4 m², ásamt geymslu nr. 0008 (6,0 m²) og svölum nr. 0205.
Eigninni fylgir bílskúr nr. 0002 (30,9 m²) auk hlutdeildar í sameign allra, sameign sumra og lóð.
Hlutfallstölur:
Mhl. 03: 14,04%
Sameign sumra: 11,88%
Hiti: 14,30%
Lóð og heildarhús: 4,67%
Pólska/Polski:
ZAREJESTRUJ SIĘ NA DZIEŃ OTWARTY – TUTAJ
Dzień otwarty odbędzie się w środę, 4 marca 2026 r., w godzinach 17:00–17:30.
Böðvar Reynisson, licencjonowany pośrednik nieruchomości, zaprezentuje nieruchomość – tel. 766-8484 lub bodvar@husaskjol.is
Funkcjonalne 3-pokojowe mieszkanie z widokiem oraz garażem o powierzchni ponad 30 m², położone w popularnej lokalizacji w Hafnarfjörður. W niewielkiej odległości znajdują się wszystkie najważniejsze usługi, takie jak przedszkole, szkoła, basen, sklepy i inne.
Mieszkanie: 101,4 m²
Komórka lokatorska: 6 m²
Garaż: 30,9 m²
Łącznie: 138,3 m²
W skład wchodzą: salon z jadalnią, kuchnia, łazienka, 2 sypialnie, przedpokój, pralnia, garaż oraz komórka lokatorska.
Przedpokój: Podłoga wyłożona płytkami, wieszak na odzież oraz pojemne szafy.
Sypialnia I: Przestronna, podłoga z paneli/parkietu, duża i funkcjonalna szafa.
Sypialnia II: Przestronna, podłoga z paneli/parkietu, pojemna szafa.
Salon/Jadalnia: Jasne i przestronne pomieszczenie z podłogą z paneli/parkietu, dużymi oknami oraz wyjściem na balkon.
Kuchnia: Jasna i przestronna z miejscem na stół oraz dużymi oknami. Podłoga wyłożona płytkami. Zabudowa kuchenna z dużą ilością miejsca do przechowywania, wbudowany piekarnik z płytą grzewczą, okap oraz podłączenie do zmywarki.
Łazienka: Przestronna, z otwieranym oknem. Ściany i podłoga wyłożone płytkami. Szafka z górnymi i dolnymi szafkami, umywalka oraz lustro. Wanna z prysznicem oraz grzejnik drabinkowy na ręczniki.
Pralnia: Znajduje się w mieszkaniu, podłoga wyłożona płytkami, podłączenie do pralki i suszarki oraz pojemne szafki.
2023: Naprawa tynku i malowanie elewacji
2023: Malowanie klatki schodowej oraz wymiana drzwi wejściowych do budynku
2022: Wymiana drzwi balkonowych oraz drzwi przeciwpożarowych z mieszkań na klatkę schodową
2022: Instalacja nowego systemu wideodomofonowego
Lokal 0202 – Numer nieruchomości F2079893.
Zarejestrowana powierzchnia części prywatnej: 107,4 m², dodatkowo garaż 30,9 m², łącznie 138,3 m².
Nieruchomość stanowi mieszkanie na 2. piętrze budynku o powierzchni 101,4 m² wraz z komórką lokatorską nr 0008 o powierzchni 6,0 m² oraz balkonem nr 0205.
Do nieruchomości przynależy garaż nr 0002 o powierzchni 30,9 m² oraz udziały w częściach wspólnych (dla wszystkich właścicieli), częściach wspólnych ograniczonych (dla niektórych właścicieli) oraz w działce.
Udziały procentowe:
Część budynku 03: 14,04%
Części wspólne ograniczone: 11,88%
Ogrzewanie: 14,30%
Działka i cały budynek: 4,67%
Enska/English:
REGISTER FOR THE OPEN HOUSE AND GET A INFO CATALOUGE – HERE
The open house will be held on Wednesday, March 4, 2026, from 17:00–17:30.
Böðvar Reynisson, Licensed Real Estate Agent, will be showing the property – Tel. 766-8484 or bodvar@husaskjol.is
A well-laid-out 2-bedroom apartment with scenic views and a 30+ m² garage, located in this popular area of Hafnarfjörður. Within short distance to all main services such as preschool, school, swimming pool, shops, and more.
Apartment: 101.4 m²
Storage room: 6 m²
Garage: 30.9 m²
Total: 138.3 m²
Includes: Living/dining room, kitchen, bathroom, 2 bedrooms, entrance hall, laundry room, garage, and storage room.
Entrance hall: Tiled flooring, good coat rack and closets.
Bedroom I: Spacious, parquet flooring, large and practical wardrobe.
Bedroom II: Spacious, parquet flooring, good wardrobe.
Living/Dining room: Bright and spacious with parquet flooring, large windows, and access to a balcony.
Kitchen: Bright and spacious with dining nook and large windows. Tiled flooring, well-designed cabinetry with ample storage, built-in oven and cooktop, range hood, and connection for dishwasher.
Bathroom: Spacious with an opening window. Fully tiled walls and floor. Vanity with upper and lower cabinets, sink, and mirror. Bathtub with shower and heated towel rack.
Laundry room: Located inside the apartment, tiled flooring, connections for washer and dryer, and good storage cabinetry.
2023: Exterior repaired and repainted
2023: Stairwell repainted and front entrance door replaced
2022: Balcony doors and fire-rated doors from apartments to stairwell replaced
2022: New video intercom system installed
Unit 0202 – Property number F2079893.
Registered size of private unit: 107.4 m², plus garage of 30.9 m², totaling 138.3 m².
The property is an apartment on the 2nd floor of the building, measuring 101.4 m², with a designated storage room (0008) of 6.0 m² and balcony (0205).
Included is garage unit 0002 (30.9 m²), along with proportional shares in common areas (all owners), limited common areas (some owners), and the plot.
Ownership proportions:
Building section 03: 14.04%
Limited common areas: 11.88%
Heating costs: 14.30%
Plot and entire building: 4.67%
Húsaskjól fasteignasala - af því að þín fasteign skiptir máli
Ertu í söluhugleiðingum? Smelltu hér til að fá frítt verðmat
Ertu að leita að sambærilegri íbúð? Smelltu hér til að skrá þig á kaupóskalistann okkar
Fylgdu okkur á Instagram
Skoðaðu hvað okkar viðskiptavinir hafa um Skoðaðu hvað okkar viðskiptavinir hafa um okkur að segja
Hvað er í gangi á fasteignamarkaðnum? Skráðu þig á Fréttaskot Húsaskjóls
Húsaskjól advices potential buyers who do not speak or read icelandic to have a translator present when they view and sign an offer, sales agreement and other documents relating to the purchase of the property.
Um skoðunar- og aðgæsluskyldu:
Í lögum um fasteignakaup nr. 40/2002 er kveðið á um ríka skoðunarskyldu kaupenda á fasteignum. Vill Húsaskjól fasteignasala því skora á væntanlega kaupendur að kynna sér vel ástand fasteigna fyrir kauptilboðsgerð og leita til þar til bærra sérfræðinga um nánari skoðun.
Forsendur söluyfirlits:
Söluyfirlit er samið af fasteignasala í samræmi við ákvæði laga nr. 70/2015. Þær upplýsingar sem fram koma í söluyfirliti þessu eru sóttar í opinberar skrár, til seljanda sjálfs og eftir atvikum til húsfélags. Seljandi veitir upplýsingar um eign í samræmi við upplýsingaskyldu laga um fasteignakaup nr. 40/2002. Fasteignasali sannreynir að þær upplýsingar séu réttar með sjónskoðun á eigninni.
Fasteignasali getur ekki fullyrt um ástand og eiginleika þeirra hluta fasteigna sem ekki eru aðgengilegir og sjást ekki berum augum, t.d. lagnir, dren, skólp og þak.
Gjöld sem kaupandi þarf að standa straum af vegna kaupanna:
1. Stimpilgjald af kaupsamningi, fyrstu kaup (0,4%), almenn kaup (0,8%), lögaðilar (1,6%) af heildarfasteignamati.
2. Þinglýsingargjald af kaupsamningi, veðskuldabréfi, mögulegu veðleyfi o.fl. - kr. 3.800 af hverju skjali.
3. Lántökugjald lánastofnunar - fast gjald. Sjá vefsíðu viðkomandi lánastofnanna
4. Umsýslugjald til fasteignasölu skv. kauptilboði
| Tegund | Fjölbýlishús |
| Verð | 79.700.000 kr. |
| Fasteignamat | 75.750.000 kr. |
| Brunabótamat | 61.750.000 kr. |
| Stærð | 138,3 fermetrar |
| Herbergi | 3 |
| Svefnherbergi | 2 |
| Baðherbergi | 1 |
| Byggingarár | 1988 |
| Lyfta | nei |
| Bílskúr | já |
| Bílskýli | nei |
| Garður | nei |
| Skráð | 09.03.2026 |